
中津東体育館空調設備の現地調査
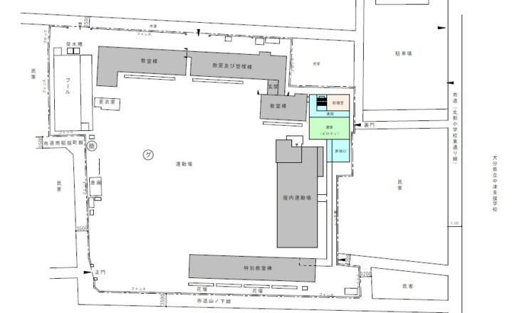
おはようございます。中津市議会議員の大塚正俊です。 昨日、中津東体育館の空調設備の現地調査に行ってきました。 9月議会の一般会計補正予算に、旧市内中...
BLOG

おはようございます。中津市議会議員の大塚正俊です。 昨日、中津東体育館の空調設備の現地調査に行ってきました。 9月議会の一般会計補正予算に、旧市内中...

おはようございます。中津市議会議員の大塚正俊です。 昨日、農家民泊「みどりさん家」で稲刈りをした籾の機械乾燥・籾すり・袋詰めが仕上がり、新米を野菜保...

おはようございます。中津市議会議員の大塚正俊です。 熊本市内にある「こども本の森 熊本」に行ってきました。 昨年4月、世界的な建築家・安藤忠雄さんが...

おはようございます。中津市議会議員の大塚正俊です。 昨日、中国北京市から南高の同級生が帰省したので、気の合う仲間と一杯やりました。久しぶりの再会に、...

おはようございます。中津市議会議員の大塚正俊です。 昨日、朝から事業所関係に「まちづくり通信第57号」を配付し、途中で城北中学校の入学式に参列しまし...

おはようございます。中津市議会議員の大塚正俊です。 昨日、北部小学校と中津警察署交通課にお伺いし、北部小学校周辺道路の交通規制についてヒアリングを行...

おはようございます。中津市議会議員の大塚正俊です。 昨日、9月議会の議案質疑が行われ、3名の議員が上程されている議案について質問しました。 学校給食...

おはようございます。中津市議会議員の大塚正俊です。 昨日、北部校区青少年健全育成協議会による「福澤語録をめぐるスタンプラリー」を開催しました。 北部...

おはようございます。中津市議会議員の大塚正俊です。 昨日、昨年9月に供用開始した「別府市学校給食センター」の現地調査に行ってきました。 給食センター...

おはようございます。中津市議会議員の大塚正俊です。 昨日、耶馬溪町金吉地区山地崩壊災害の発生から6年を迎え、「4.11中津市の防災を考える日」の防災...